Burke High School/Grove Hall Branch Library

Boston, Massachusetts

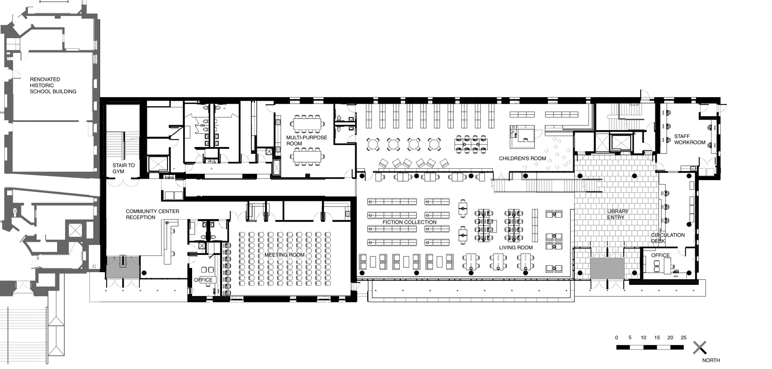
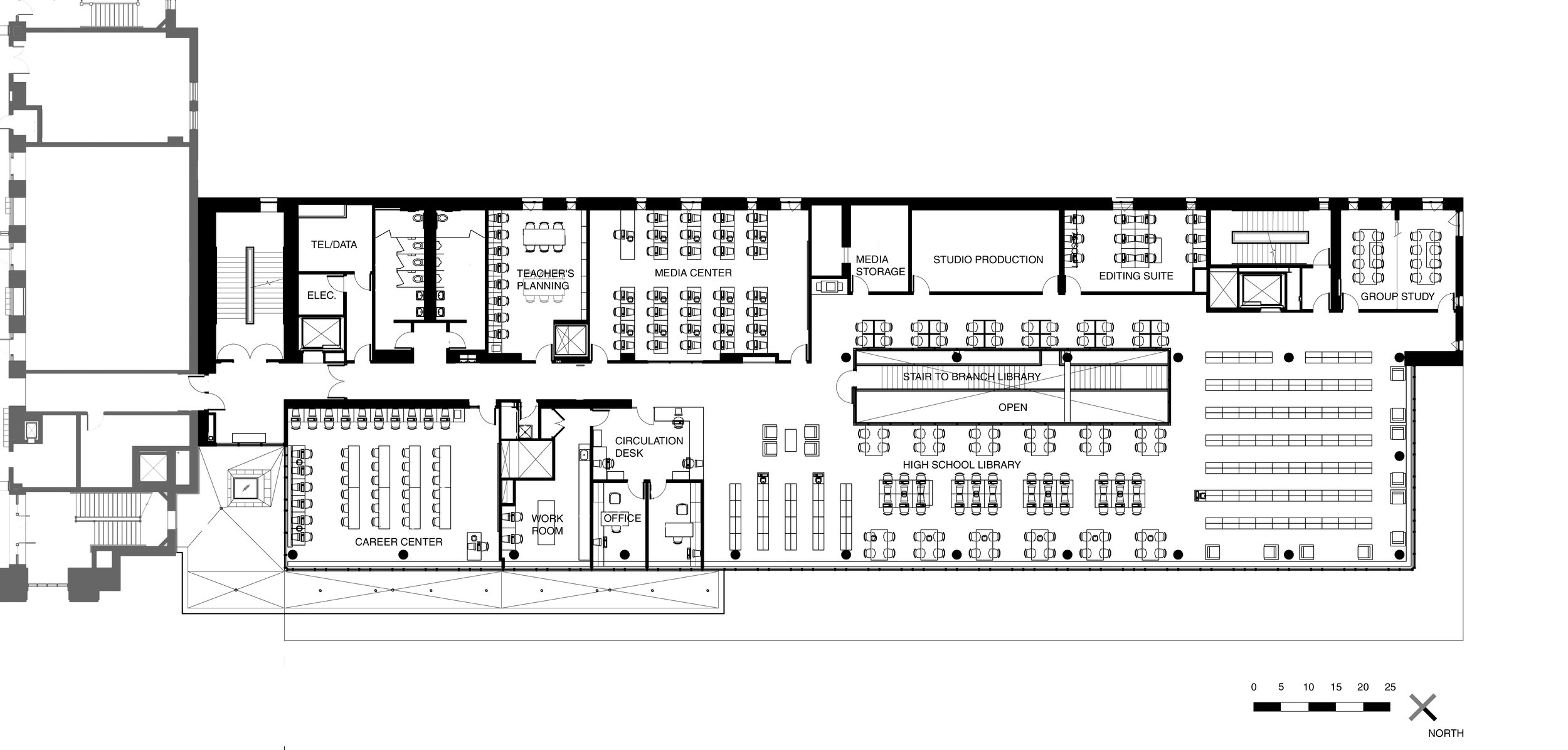
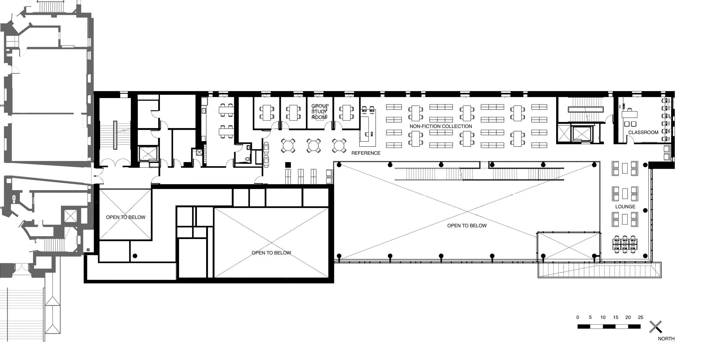
The Jeremiah Burke High School is located in Dorchester, Boston's largest and most diverse neighborhood.  The 1934 school has been renovated, and a new wing houses a public library, high school library, community center, and gymnasium. The Grove Hall Branch of the Boston Public Library stretches along the street with a two-story-high glass façade. Above it is the new school library, connected to below with an open fish-ladder stair.  And at the top of the new wing is the competition-sized school gymnasium, with special floor construction to isolate noise. 

Recognition: 
Combined Community Program Citation, Boston Society of Architects

The Burke is the first new facility to exemplify the mayor’s Community Learning Initiative, a collaborative effort by Boston Public Schools, and the Boston Public Library to promote education and literacy across the city. With a flexible and user-friendly design, Schwartz/Silver has effectively managed circulation and different levels of controlled access between the various programs in the old and new buildings … while maintaining transparency and openness and keeping security concerns at the forefront.
— Beth Broome, Architectural Record

Collaborators

Structural Engineer: Le Messurier Consultants Inc.
Mechanical and Plumbing Engineer: SAR Engineering Inc.
Electrical Engineer: Johnson Engineering and Design, Inc.
Landscape Architect: Geller DeVellis Inc.
Civil Engineer: Nitsch Engineering
Code: Jensen Hughes, Inc.
Acoustics: Cavanaugh Tocci Associates, Inc.
Preservation Consulting: Preservation Technology Associates, Inc. 
Hazardous Materials Testing: EnviroScience Consultants Inc.
Estimator: A.M. Fogarty. & Associates, Inc.
General Contractor: W. T. Rich Company
Photographer 1: @ Alan Karchmer
Photographer 2: © Aram Boghosian

map