Tanglewood House 2

West Stockbridge, Massachusetts

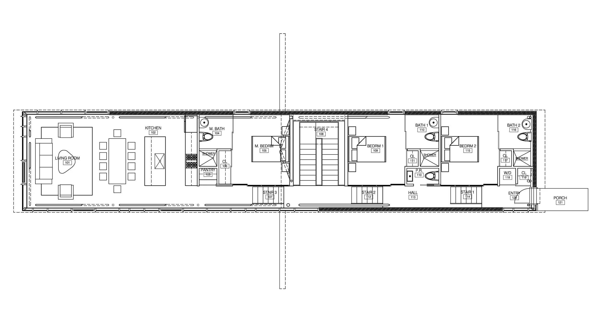
The house, designed by Warren Schwartz, is the summer residence for him and his wife, Sheila Fiekowsky, a member of the Boston Symphony Orchestra. The house is located near the top of a hill, and though small, it commands the landscape.  The building skin uses industrial materials, with commercial glazing and corrugated anodized aluminum siding. The living area, intentionally located at the end of a forty-five-foot cantilever, opens onto spectacular views.

Recognition:

Honor Award, AIA New England Regional Council

Collaborators

Structural Engineer: Sarkis Zerounian & Associates
Mechanical, Plumbing, and Electrical Engineer: Berkshire Control Mechanical
General Contractor: Chris May Builders, Inc.
Photographer: © Alan Karchmer