The Broad

The Broad

$0.00
Add To Cart

Los Angeles, California

DSC00720.JPG

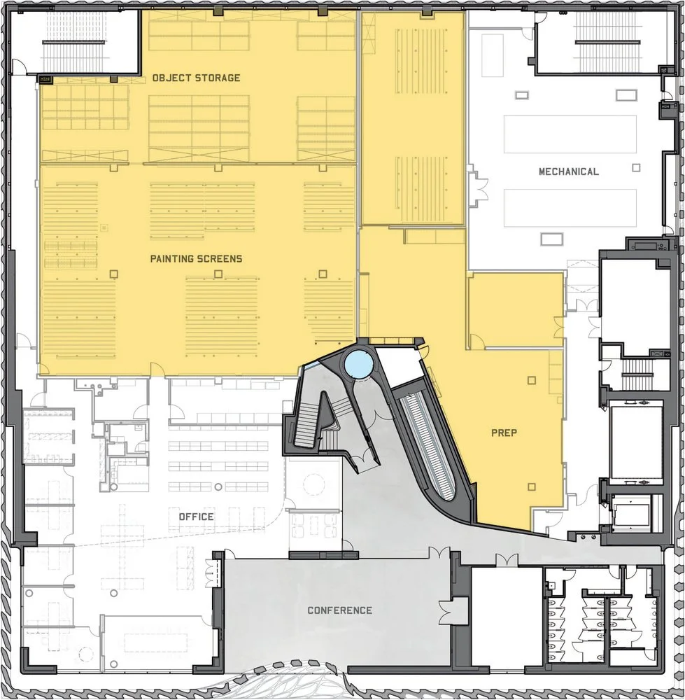
Built to display the contemporary art collections of Eli and Edith Broad, the new museum designed by Diller Scofidio + Renfro is located adjacent to the Disney Auditorium in downtown Los Angeles. Our firm was added to the design team by the Broad to confer on standards for collections storage and processing spaces, and to design collections storage areas within the new structure. Intent on exposing the size and depth of the collections to the public, the design architects provided windows into the painting storage area from the main exit stair of the top floor galleries.

 

The Broad_photo by Iwan Baan_5200.jpg
DSC00727.JPG
LA-Times.jpg
DSC00746.JPG

Collaborators

Architect of Record: Diller Scofidio + Renfro

 

Map
Harvard Art Museum Storage

Harvard Art Museum Storage

$0.00

HMFA Collections Storage

$0.00
Autry Museum Resource Center

Autry Museum Resource Center

$0.00

Harvard Art Museum Interim Collections

$0.00