House on the Coast

House on the Coast

$0.00
Add To Cart

Private Residence

Ext Southwest.jpg

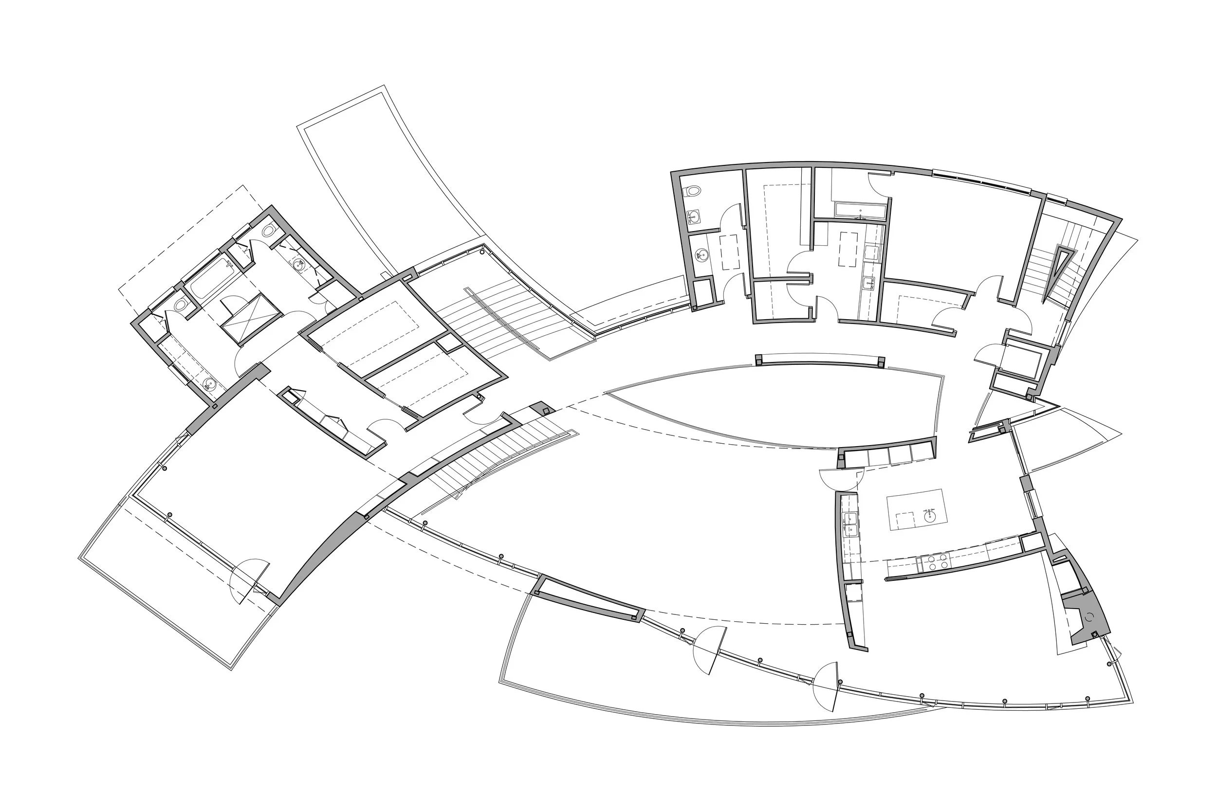
Schwartz/Silver’s design response to an exceptional vantage point is fundamental to the conception of the house – its arcing form following the line of water round into a bay, creating panoramic views of sea and sky. Counterpoised to this predominant line is a second arc, facing the land and presenting the main entry. The spatial organization results in a pointed interior atrium, with rooms arranged along the two curves.

HouseonCoast-Ext Bow End-Big Sky.jpg
HouseonCoast-Ext North End Night.jpg
HouseonCoast-night w trees.jpg
HouseonCoast-Interior.jpg
Ext South End-REV.jpg
Int-Atrium-chapel.jpg
Maleint1.jpg
Int-LivingRoom.jpg
45 Littles Drone 3.jpg

Collaborators

Structural Engineer: Sarkis Zerounian & Associates
Mechanical and Plumbing Engineer: Johnson & Stover
Landscape Architect: Thomas Wirth Associates
Kitchen Design: Weston Kitchens
Contractor: Thoughtforms
Photographer: © Alan Karchmer

House on the Cape 2

House on the Cape 2

$0.00

House on Oyster Pond

$0.00
House on a Pond

House on a Pond

$0.00
Tanglewood House 2

Tanglewood House 2

$0.00
House on the Cape 1

House on the Cape 1

$0.00